Structural Drafting
Experts In:
Structural Drafting Services
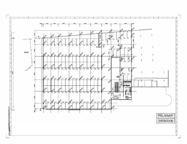
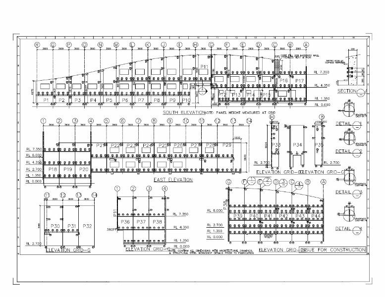
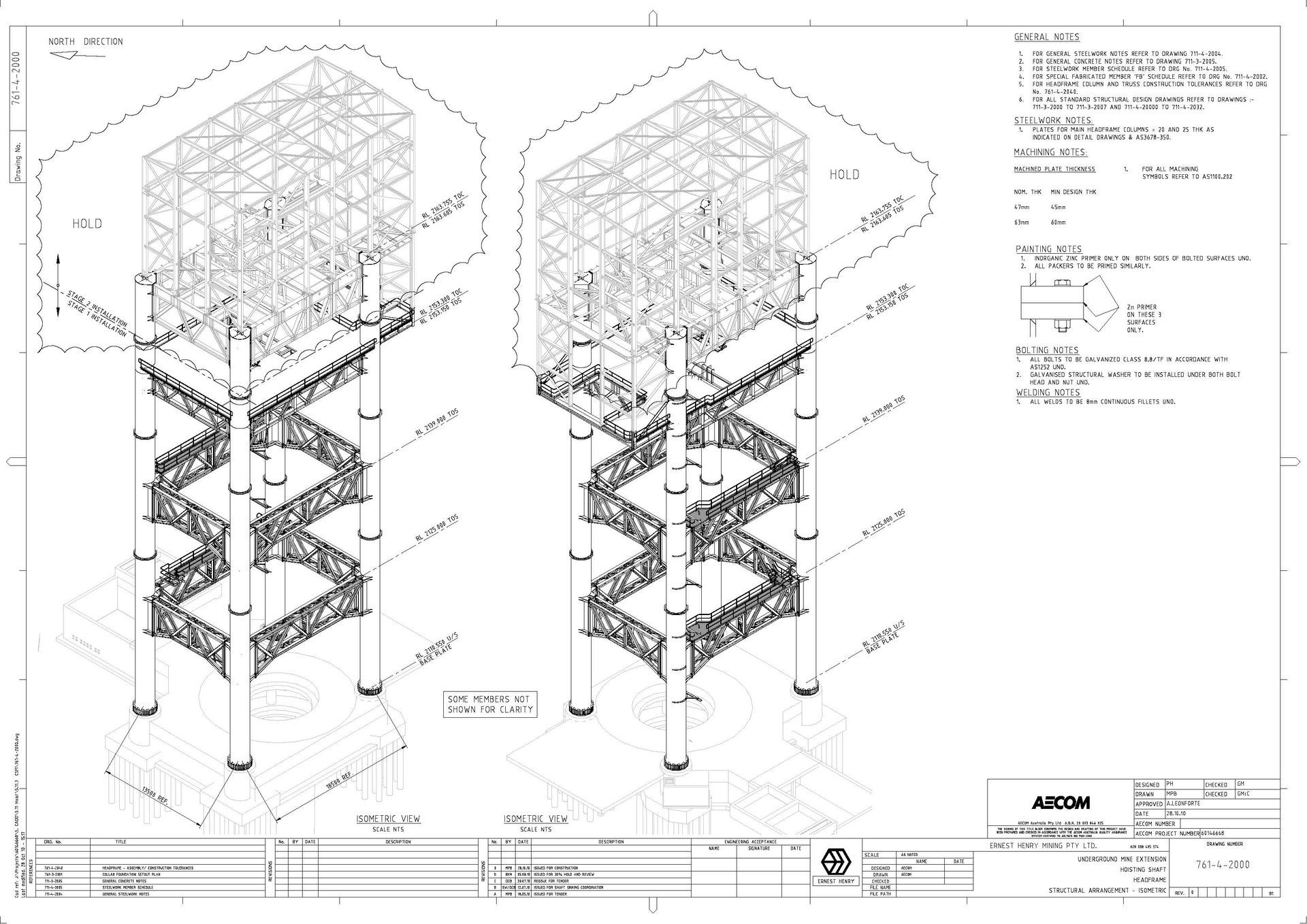
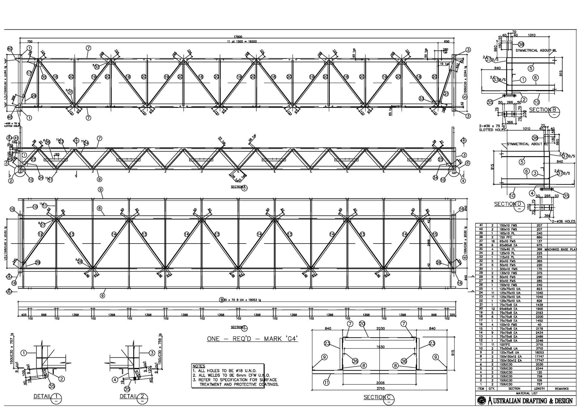
Since 1993, we have offered top-quality structural design drafting services and shop detailing. From conceptualisation to final construction documentation, we work closely with our clients to ensure that every project meets their specific needs and requirements. Additionally, our deep understanding of local building codes and regulations ensures that all our designs are safe, compliant, and reliable.
Our team of experienced drafters uses the latest CAD software to create detailed and accurate 2D and 3D models for a wide range of structural systems, including steel foundations, concrete structures, composite structures, and more. Not just this, but our work also includes detailed drafting design services for a range of structural components, including beams, trusses, fabricators and more.
Sample Projects
Our sample projects include:
Refurbishment of the Queen St Mall
MacArthur Chambers
Radisson Hotel Suites
Phosphate Hill
Comalco Aluminia
Helidecks
Schools and many other commercial and industrial projects Australia wide
Software
We use a range of software for structural drafting including:
AutoCAD
REVIT
INVENTOR
SOLIDWORKS
MICROSTATION CADconform
Get in Touch
If you want to learn more about how we can help you, get in touch with us today by filling out the form on our contact page or call us on - 1300 882 768










